조성완료 산단
매곡2·3차일반산업단지
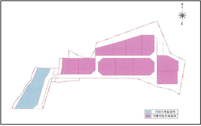
매곡2차 일반산업단지 업종별 배치도

매곡3차 일반산업단지 업종별 배치도

산업단지 개요


- 사업개요
- 위치 : 북구 매곡동 일원
- 면적 : 234,551㎡(매곡2 76,544.9㎡, 매곡3 158,006.1㎡)
- 사업기간 : 2009년 ~ 2014년
- 사업비 : 586억원(공사 334, 보상 199, 기타 53)
- 유치업종 : 자동차 및 트레일러 제조업(30), 기타 기계 및 장비제조업(29) 등
- 추진현황
- 일반산업단지 지정 : ’10. 12. 30.
- 실시계획 승인 : ’11. 1. 30.
- 일반산업단지 관리기본계획 고시 : ‘11. 3. 10.
- 공사 착공 : ‘12. 7. 20.
- 공사 준공 : ‘14. 10. 30. (사업 준공 ‘14. 12. 4.)
- 일반산업단지 관리기본계획(변경) 고시 : ‘18. 3. 22.
- 분양현황 (산업시설용지)
(단위 : ㎡)
분양현황 - 분양현황 정보 테이블입니다. 구분, 계획(면적, 필지), 분양면적(면적, 필지), 미분양(면적, 필지), 분양가로 구성 계 매곡2 매곡3 분양가 필지 면적 필지 면적 면적 필지 32 162,665.2 12 44,640.1 20 118,025.1 1,119,220원/평 - 입주업체현황
(2020.1월말 기준)
입주업체현황 - 입주업체현황 정보 테이블입니다. 입주대상, 계, 공장가동, 비가동, 가동율, 비고로 구성 입주대상 계 공장가동 비가동 가동율 비고 계 32 27 5 84.4% 매곡 2 12 8 4 66.7% 매곡 3 20 19 1 95%
산업단지 관리기본계획
- 관리 기본 방향
- 21세기 울산의 장기발전을 위한 전략산업 육성
- 산업공해 최소화로 친환경적인 산업단지 조성
- 조성목적에 부합하는 합리적인 업종배치로 산업단지활성화 도모
- 입주업체에 대한 적극적 지원활동 및 관리업무 전문화로 효율성 제고
- 산업용지 용도별 구역계획
- 용도별구역면적
용도별구역면적 - 용도별구역면적 정보 테이블입니다. 총면적, 산업시설구역, 연구시설구역, 지원시설구역, 공공시설구역, 녹지구역로 구성 계 산업시설구역 지원시설구역 공공시설구역 234,551
(100%)162,665.2
(54.1%)-
(-)71,885.8
(30.7%) - 구역별 건축할 건축물의 범위
- 산업시설구역
- 「산업집적활성화 및 공장설립에 관한 법률(이하 “산업집적법”이라 한다)」제2조 제1호 및 같은 법 시행령 제2조(공장의 범위), 같은법 시행규칙 제2조(부대시설 범위) 규정에 의한 공장 및 당해 공장의 부대시설
- 지원시설구역
- 해당사항 없음
- 공공시설구역
- 공공기관이 설치하는 공공용 건축물과 관련시설 및 녹지구역 유지 관리에 필요한 건축물과 관련시설
- 산업시설구역
- 업종별 배치계획
- 업종별 배치계획
(단위 : 필지, ㎡)
업종별 배치계획 - 업종별 배치계획 정보 테이블입니다. 한국표준산업분류, 면적, 구성비, 비고 구분(한국표준산업분류) 면적 구성비 비고 계 162,665.2 100 기타 기계 및 장비 제조업(C29) 55,094.8 66.1 - 매곡2:7,944.1
- 매곡3:47,150.7
자동차 및 트레일러 제조업(C30) 107,570.4 33.9 - 매곡2:36,696
- 매곡3:70,874.4
태양력 발전업(D35114) - - - 전체 허용
배전반 및 전기자동제어반 제조업(28123) 11,243.5 - - 매곡2:11,243.5 (중복 허용)
컨베이어 장치 제조업(29163)
자동차용 전용 신품 부품 판매업(45212)
기타 자동차 신품 부품 및 내장품 판매업(45219)18,584.1 - - 매곡3:18,584.1 (중복 허용)
- 배치기준
- 산업시설은 환경적 측면(대기, 수질, 소음, 진동) 및 업종별 특성(관련업종 인접배치)을 고려하여 배치
- 업종별 배치계획
- 용도별구역면적


